[ λ ] - C'est quoi bomsky construct°s?
[BC°] - C'est une agence d'architecture et autres activités de design intérieur.
[ λ ] - ah...
[BC°] - ça vous convient pas comme description?
[ λ ] - Mouais... c'est un peu succin.
Et ces voûtes en pierres là sur la plage?
Ça fait pas très sérieux quand même.
[BC°] - ba essayez d'en faire vous verrez c'est pas si simple. Mais c'est très beau.
Une voute en pierres sèches c'est un peu une des bases de l'histoire de la construction non?
[ λ ] - Et cette lampe bizarre?
[BC°] - elle vous plaît pas cette lampe suspension? Pourtant elle est chouette, à géométrie variable, et originale.
Et en plus vous pouvez même la fabriquer, ou nous en demander une si vous avez la flemme.
[ λ ] - Soit...
mmm... ce serait possible d'avoir juste légèrement plus de détails sur ce que vous pouvez faire?
[BC°] - bon ok.
Donc:
On conçoit des constructions, ou des extensions, en concertation avec ses habitants, en essayant de limiter autant que possible leur impact environnemental à la construction:
- en minimisant l'utilisation du béton,
- en privilégiant la construction en bois et l'utilisation de matériaux isolants naturels,
- en préférant l'adaptation de constructions existantes plutôt que de faire du neuf.
et à long terme avec l'isolation et l'optimisation climatique.
[ λ ] - L'optimisation climatique?
[BC°] - Oui c'est un peu pompeux comme terme...
Par exemple, c'est profiter d'une exposition au soleil pour récupérer de l'énergie, c'est éviter les grandes fenêtres exposées plein nord, mais aussi faire en sorte de pas griller pendant les périodes chaudes. etc etc.
Donc bien étudier la situation climatique (exposition, vents dominants, vents froids, vents chauds...) et agir en conséquence pendant la conception.
Toujours, bien sûr, dans un soucis d' intégration aux alentours, et dans la connaissance détaillée et l'évolution des règles locales d'urbanisme.
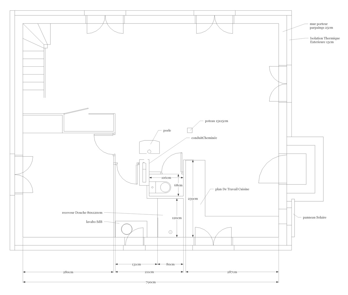
Ça passe donc par des visites, des études, des entretiens, des plans, des maquettes 3d, des rePlans, des reMaquettes.
Puis enfin par la gestion de la demande de permis de construire (ou de demande de travaux si suffisante).
Pour du design intérieur (architecture intérieure), c'est un peu pareil: de l'écoute, des visites, avec des plans, des maquettes 3d.
Toujours en privilégiant l'utilisation du bois quand c'est possible, que ce soit pour les sols ou pour les mobiliers.
[ λ ] - C'est bien joli tout ça mais c'est quoi vos compétences?
[BC°] - Avec une expérience multiple dans la construction, qui va de l'ossature bois à la couverture en passant par la maçonnerie, la menuiserie, la charpente et autres. La conception s'appuie sur une expérience pratique de la plupart sur cette maîtrise.
Cela permet de faire les meilleurs choix techniques et économiques.
Et ces expériences sont aussi très utiles pour contrôler la qualité de la mise en oeuvre dans le cadre d'un éventuel suivi de chantier.
D'autres questions?
[ λ ] - ... pas pour l'instant.
[BC°] - ok, si de nouvelles questions vous venaient, vous nous envoyez un petit courriel, soit pour nous les poser direct par écrit, soit pour qu'on vous rappelle et que vous puissiez les poser de vive voix...

